Casa semindipendente in vendita

Agliana, Via Provinciale Pratese - Spedalino
€ 135.000
4 locali 4 locali
100 Mq 100 Mq
1 bagno 1 bagno

Casa semindipendente in vendita

Agliana, Via Provinciale Pratese - Spedalino

Descrizione annuncio

IMMOBILE LOCATO a 550 EURO AL MESE FINO A GENNAIO 2027


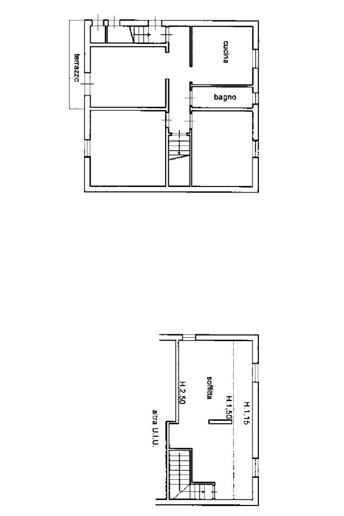
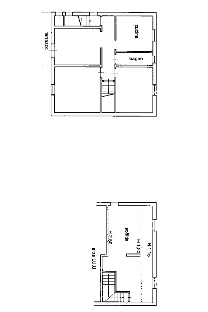
Si propone in vendita porzione di bifamiliare posta al primo piano, situata in contesto tranquillo e residenziale.
L’abitazione è composta da soggiorno con accesso al balcone, cucina abitabile separata, due camere matrimoniali di generose dimensioni e bagno finestrato.

La proprietà è completata da soffitta privata con accesso interno, rimessa esterna di 20 mq e resede privato con possibilità di parcheggio, elementi che conferiscono maggiore funzionalità e valore all’immobile. Gli ambienti risultano ben distribuiti e godono di una buona luminosità.

Si precisa che alcune fotografie presenti nell’annuncio sono state modificate per migliorare la percezione degli spazi.

Mostra tutto

Nelle vicinanze

Trasporto pubblico Trasporto pubblico
Montale Agliana
Montale Agliana
1,4 Km
Trasporto pubblico
140 m
Goldoni Sn
Goldoni Sn
1,4 Km
Ricariche auto elettriche Ricariche auto elettriche
COOP CENTRO Agliana | EnelX fast
1,0 Km
Scuole Scuole
Scuole
1,9 Km
Anna Frank
3,0 Km
Farmacia Farmacia
Farmacia La Stazione
1,4 Km
Farmacia
1,8 Km
Supermercati Supermercati
Supermercati
970 m
Coop
980 m
Penny
1,9 Km
Conad
2,3 Km
Negozi Negozi
Panificio fratelli Mastrella
1,7 Km
DiMarket
2,2 Km
Il Chicco Di Grano
2,9 Km
Bar Bar
La Casita
840 m
Bar
1,0 Km
Gallo Nero
1,8 Km
Circolo Badia
2,4 Km
Circolo ARCI Chiesina Montalese
2,6 Km
Ristoranti Ristoranti
Filodolio - La Tripperia
1,8 Km
Fidolio
1,8 Km
Rosticceria Amici per la gola
1,9 Km
Lago Primo Maggio
2,6 Km
Circolo Parrocchiale Oscar Romero
2,8 Km
Mostra tutto

Caratteristiche

Rif.:
61172238
Piano:
1 di 1 (ultimo Piano)
Box:
1
Posti auto:
1
Balconi:
1
Camere da letto:
2
Mostra tutto
Prezzo Prezzo
€ 135.000
Rata mutuo Rata mutuo
€ 630 / mese
Spese annue Spese annue
€ 0
Proponi il tuo prezzoProponi il tuo prezzo
Immobile valutato con T·Valuta

Classe Energetica

G
G
G
G
G
G
G
G
G
EP invernale del fabbricato:
EP estiva del fabbricato:
Anno di costruzione:
1967
Riscaldamento:
Autonomo
Tipo impianto:
A radiatori
Tipo alimentazione:
Metano

Ti interessa visionare l'immobile?

Fissa un appuntamento  Fissa un appuntamento

Richiedi informazioni

Clicca su Leggi per aprire l'informativa
* Questi campi sono obbligatori

Calcola il tuo mutuo

Semplice e senza impegno
Anticipo

( % )
Mutuo

( % )

pochi semplici passi

inserisci i tuoi dati
Questionario completato
Grazie per aver richiesto un appuntamento senza impegno con un nostro Consulente del Credito e Assicurativo.

Hai inserito correttamente tutti i dati necessari e a breve riceverai una e-mail con un link da convalidare per inviare i tuoi dati.
Affiliato
Studio Agliana Montale Snc
P.zza IV Novembre, 52 51031 Agliana (PT)

Il nostro staff


  • Fabio Lushi
    Collaboratore

  • Naima Nesti
    Coordinatrice

  • Giuseppe Santoro
    Affiliato

  • Emanuele Santoro
    Affiliato
P.zza IV Novembre, 52 51031 Agliana (PT)
Zona: Pistoia Agliana
Mostra su mappa
Orari: Lunedì-Venerdì: 9:00 - 13:00, 15:00 - 20:00 Sabato: 9:00 - 13:00 , 15:00 - 18:00
Affiliato
Studio Agliana Montale Snc
P.zza IV Novembre, 52 51031 Agliana (PT)

2026 Tecnocasa Franchising S.p.A. - P. IVA 08365160152 - Via Monte Bianco 60/A 20089 Rozzano (MI). Ogni agenzia ha un proprio titolare ed è autonoma. Privacy policy | Policy utilizzo | Cookie policy