Trilocale in vendita

Agliana, Via don sinibaldo sottili
€ 259.000
3 locali 3 locali
84 Mq 84 Mq
1 bagno 1 bagno

Trilocale in vendita

Agliana, Via don sinibaldo sottili

Descrizione annuncio

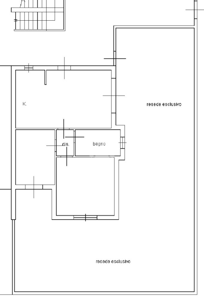
In contesto residenziale tranquillo e ben curato, proponiamo in vendita appartamento al piano terra di costruzione del 2012, ideale per chi desidera comfort moderno e spazi esterni privati.

L’immobile si compone di una luminosa zona giorno con soggiorno e cucina open space, ambiente accogliente e funzionale, con accesso diretto al giardino privato. La zona notte è composta da una spaziosa camera matrimoniale e da una camerina versatile, anch’essa con accesso diretto al giardino.

Il giardino privato rappresenta uno spazio ideale per momenti di relax all’aria aperta, pranzi e cene estive o per chi ha animali domestici.

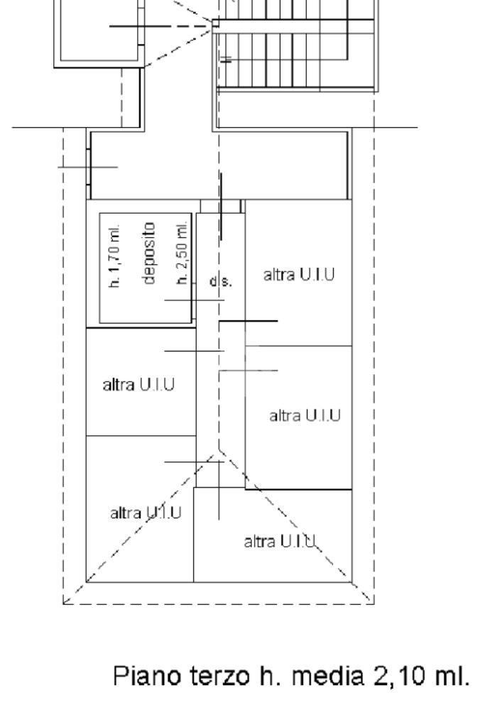
Completano la proprietà una comoda soffitta privata, ideale come spazio di deposito, e due posti auto di proprietà che garantiscono praticità e comodità.

Soluzione pronta da abitare e adatta a giovani coppie

Mostra tutto

Nelle vicinanze

Trasporto pubblico Trasporto pubblico
Montale Agliana
Montale Agliana
2,0 Km
Magni 118
Magni 118
860 m
Lavagnini 23
Lavagnini 23
920 m
Ricariche auto elettriche Ricariche auto elettriche
COOP CENTRO Agliana | EnelX fast
2,1 Km
Scuole Scuole
Scuole
1,2 Km
Anna Frank
1,7 Km
Farmacia Farmacia
Farmacia
1,2 Km
Farmacia La Stazione
2,0 Km
Farmacia di Galciana - Punto Salute
2,9 Km
Supermercati Supermercati
Conad
780 m
Supermercati
2,2 Km
Coop
2,2 Km
Penny
2,4 Km
Negozi Negozi
Panificio fratelli Mastrella
2,0 Km
Bar Bar
Gallo Nero
1,3 Km
Bar
1,3 Km
Il Malandrino
1,3 Km
La Casita
2,5 Km
Ristoranti Ristoranti
Bierplatz
370 m
Sushi King
380 m
Lago Primo Maggio
900 m
Rosticceria Amici per la gola
1,2 Km
Fidolio
1,3 Km
Mostra tutto

Caratteristiche

Rif.:
61180904
Piano:
Terra con giardino di 3 con ascensore
Totale piani:
3
Posti auto:
2
Camere da letto:
2
Arredamento:
Assente
Mostra tutto
Prezzo Prezzo
€ 259.000
Rata mutuo Rata mutuo
€ 1.209 / mese
Spese annue Spese annue
€ 580
Proponi il tuo prezzoProponi il tuo prezzo
Immobile valutato con T·Valuta

Classe Energetica

A2
A2
A2
A2
A2
A2
A2
A2
A2
EP invernale del fabbricato:
EP estiva del fabbricato:
Anno di costruzione:
2012
Riscaldamento:
Autonomo
Tipo impianto:
A radiatori
Tipo alimentazione:
Metano

Ti interessa visionare l'immobile?

Fissa un appuntamento  Fissa un appuntamento

Richiedi informazioni

Clicca su Leggi per aprire l'informativa
* Questi campi sono obbligatori

Calcola il tuo mutuo

Semplice e senza impegno
Anticipo

( % )
Mutuo

( % )

pochi semplici passi

inserisci i tuoi dati
Questionario completato
Grazie per aver richiesto un appuntamento senza impegno con un nostro Consulente del Credito e Assicurativo.

Hai inserito correttamente tutti i dati necessari e a breve riceverai una e-mail con un link da convalidare per inviare i tuoi dati.
Affiliato
Studio Agliana Montale Snc
P.zza IV Novembre, 52 51031 Agliana (PT)

Il nostro staff


  • Fabio Lushi
    Collaboratore

  • Naima Nesti
    Coordinatrice

  • Giuseppe Santoro
    Affiliato

  • Emanuele Santoro
    Affiliato
P.zza IV Novembre, 52 51031 Agliana (PT)
Zona: Pistoia Agliana
Mostra su mappa
Orari: Lunedì-Venerdì: 9:00 - 13:00, 15:00 - 20:00 Sabato: 9:00 - 13:00 , 15:00 - 18:00
Affiliato
Studio Agliana Montale Snc
P.zza IV Novembre, 52 51031 Agliana (PT)

2026 Tecnocasa Franchising S.p.A. - P. IVA 08365160152 - Via Monte Bianco 60/A 20089 Rozzano (MI). Ogni agenzia ha un proprio titolare ed è autonoma. Privacy policy | Policy utilizzo | Cookie policy