Trilocale in vendita

Agliana, Via Del Calice
€ 250.000
3 locali 3 locali
80 Mq 80 Mq
1 bagno 1 bagno

Trilocale in vendita

Agliana, Via Del Calice

Descrizione annuncio

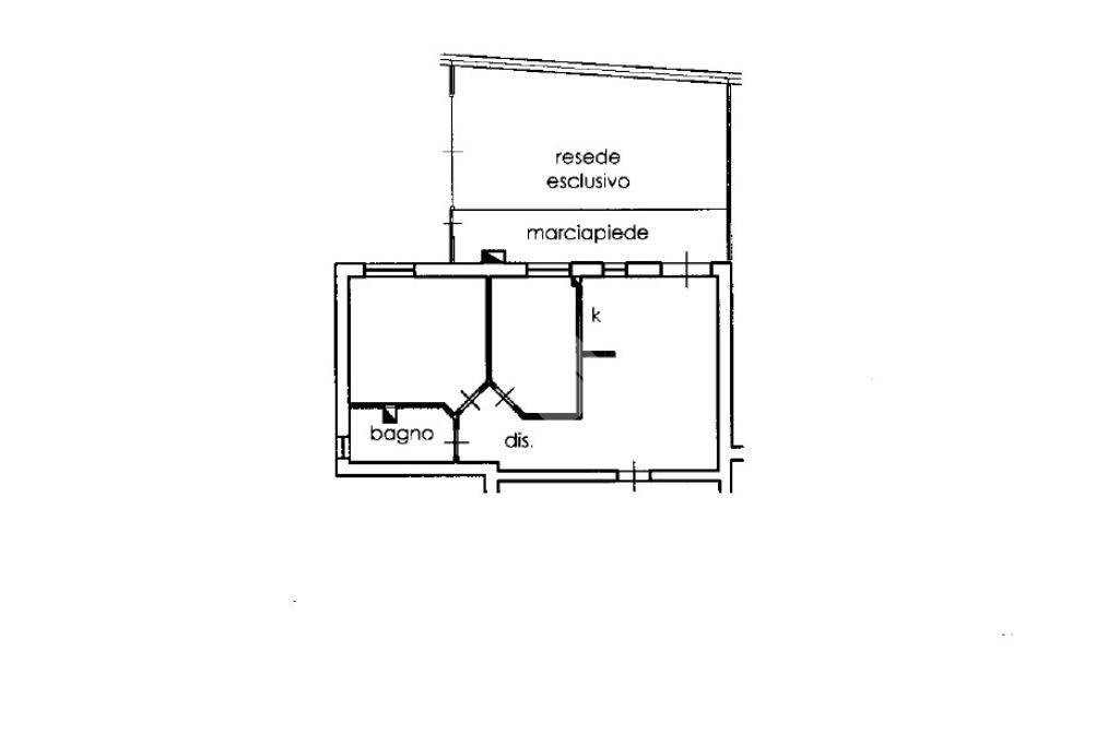
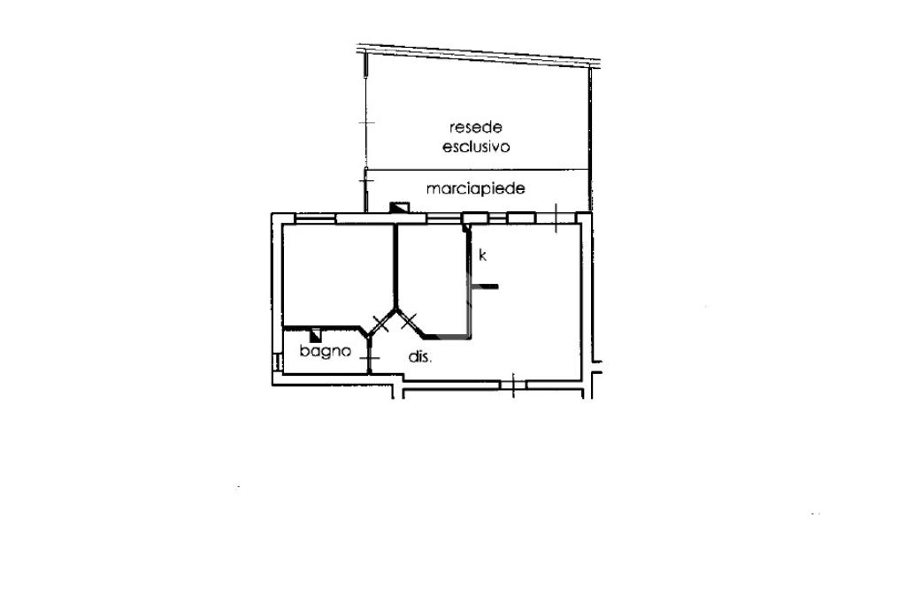
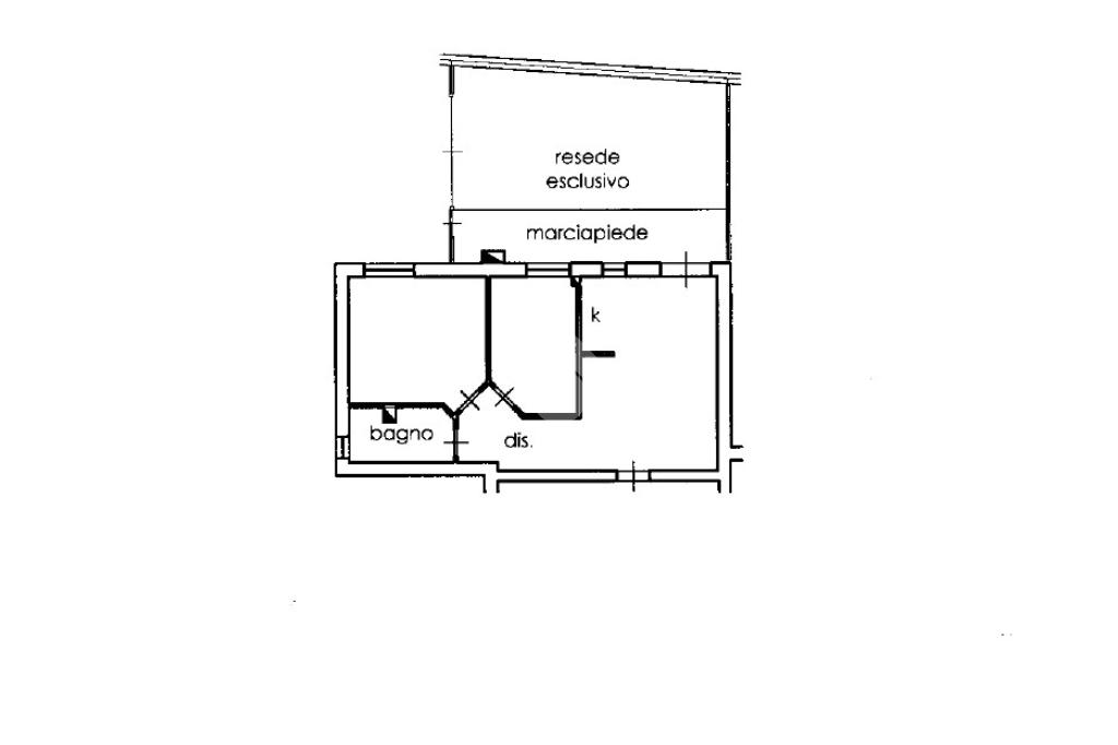
In zona tranquilla e ben servita proponiamo in vendita un elegante trilocale di costruzione del 2011, caratterizzato da ambienti moderni e ben distribuiti.

L’abitazione è composta da un luminoso soggiorno con cucina open space, una camera matrimoniale, una camerina e un bagno finestrato.

Completano la proprietà un resede esclusivo frontale, ideale per momenti di relax all’aperto, e un comodo posto auto privato.

L’edificio è dotato di pannelli solari, che garantiscono efficienza energetica e ridotti consumi.

Soluzione ideale per chi cerca comfort, modernità e tranquillità in un contesto residenziale ben servito.


Le spese condominiali ammontano a circa 580 euro l’anno.

Si precisa che l'immobile verrà consegnato privo di arredi, sia interni che esterni

Mostra tutto

Nelle vicinanze

Trasporto pubblico Trasporto pubblico
Montale Agliana
Montale Agliana
2,2 Km
Magni 118
Magni 118
970 m
Lavagnini 23
Lavagnini 23
1,1 Km
Ricariche auto elettriche Ricariche auto elettriche
COOP CENTRO Agliana | EnelX fast
2,2 Km
Scuole Scuole
Scuole
1,3 Km
Anna Frank
1,9 Km
Farmacia Farmacia
Farmacia
1,3 Km
Farmacia La Stazione
2,2 Km
Farmacia di Galciana - Punto Salute
3,0 Km
Supermercati Supermercati
Conad
900 m
Supermercati
2,2 Km
Coop
2,2 Km
Penny
2,6 Km
Negozi Negozi
Panificio fratelli Mastrella
2,0 Km
Bar Bar
Gallo Nero
1,3 Km
Bar
1,4 Km
Il Malandrino
1,5 Km
La Casita
2,5 Km
Ristoranti Ristoranti
Bierplatz
190 m
Sushi King
190 m
Lago Primo Maggio
800 m
Rosticceria Amici per la gola
1,3 Km
Fidolio
1,4 Km
Mostra tutto

Caratteristiche

Rif.:
61138948
Piano:
Terra di 1 con ascensore
Totale piani:
1
Posti auto:
1
Camere da letto:
2
Condizionamento:
Autonomo
Mostra tutto
Prezzo Prezzo
€ 250.000
Rata mutuo Rata mutuo
€ 1.180 / mese
Spese annue Spese annue
€ 580
Proponi il tuo prezzoProponi il tuo prezzo

Classe Energetica

B
B
B
B
B
B
B
B
B
EP invernale del fabbricato:
EP estiva del fabbricato:
Anno di costruzione:
2011
Riscaldamento:
Autonomo
Tipo impianto:
A pavimento
Tipo alimentazione:
Aria

Ti interessa visionare l'immobile?

Fissa un appuntamento  Fissa un appuntamento

Richiedi informazioni

Clicca su Leggi per aprire l'informativa
* Questi campi sono obbligatori

Calcola il tuo mutuo

Semplice e senza impegno
Anticipo

( % )
Mutuo

( % )

pochi semplici passi

inserisci i tuoi dati
Questionario completato
Grazie per aver richiesto un appuntamento senza impegno con un nostro Consulente del Credito e Assicurativo.

Hai inserito correttamente tutti i dati necessari e a breve riceverai una e-mail con un link da convalidare per inviare i tuoi dati.
Affiliato
Studio Agliana Montale Snc
P.zza IV Novembre, 52 51031 Agliana (PT)

Il nostro staff


  • Fabio Lushi
    Responsabile

  • Naima Nesti
    Coordinatrice

  • Giuseppe Santoro
    Affiliato

  • Emanuele Santoro
    Affiliato
P.zza IV Novembre, 52 51031 Agliana (PT)
Zona: Pistoia Agliana
Mostra su mappa
Orari: Lunedì-Venerdì: 9:00 - 13:00, 15:00 - 20:00 Sabato: 9:00 - 13:00 , 15:00 - 18:00
Affiliato
Studio Agliana Montale Snc
P.zza IV Novembre, 52 51031 Agliana (PT)

2025 Tecnocasa Franchising S.p.A. - P. IVA 08365160152 - Via Monte Bianco 60/A 20089 Rozzano (MI). Ogni agenzia ha un proprio titolare ed è autonoma. Privacy policy | Policy utilizzo | Cookie policy